숭의2동 행정복지센터 기록화 사업
인천광역시 미추홀구, 경기
Sungui-2-dong Welfare Center
Incheon Michuhol-gu and Gyeonggi-do
인천광역시 미추홀구, 경기
Sungui-2-dong Welfare Center
Incheon Michuhol-gu and Gyeonggi-do
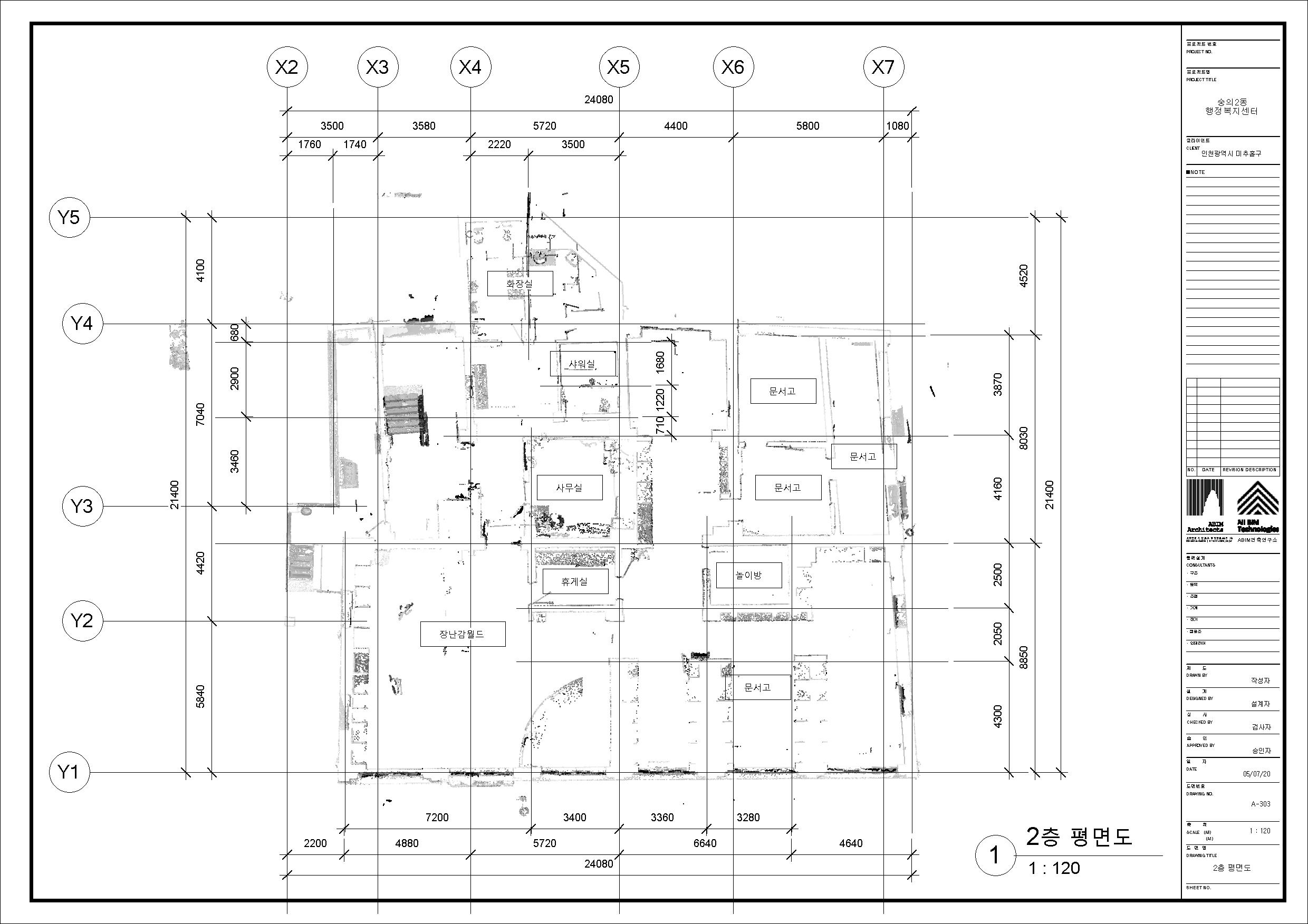
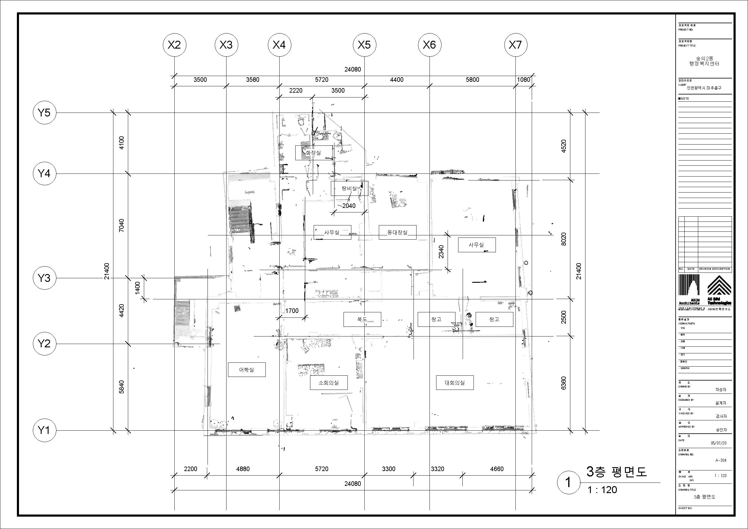
- 건립연대 : 1964.07.10
- 건물용도 : 공공업무시설
- 건축구조 : 철근콘크리트조
- 규 모 : 지하1층, 지상3층
- 대지면적 : 1,158.4 ㎡
- 건축면적 : 435.06 ㎡
- 연 면 적 : 1,380.34 ㎡
인천 미추홀구에 위치한 ‘숭의2동 행정복지센터’는 1964년에 세워지고 건축자산으로 지정되어 있다. 오랜 기간 숭의2동 주민들의 생활 복지에 그 역할을 다하고 새로운 모습으로 태어날 예정이다.
이제는 추억이 될 건물의 지금 모습이 오래도록 기억될 수 있도록 현재의 모습을 아카이빙한 것이다.




